Zagadka muru obronnego w rejonie ul. Młynarskiej.
07.08.2010 r.
W trakcie modernizacji obronnych murów miejskich, wywołanych rosnącym zagrożeniem tureckim, doszło po 1532 r. do wybudowania przy Bramie Oławskiej drugiego pierścienia murów, zwanego z czeska parkanem. Parkan wybudowano tylko po obu stronach wspomnianej bramy na niewielkim odcinku. Znajdował się on w odległości ok. 8-9 metrów od wcześniej wybudowanego (XIV w.) muru kurtynowego. Między nimi powstał pas ziemi zwany międzymurzem (zwingerem), na którym można było tworzyć działobitnie i stawiać armaty. W miarę dobrze opisano mur kurtynowy, parkan i międzymurze leżące z prawej (wschodniej) strony bramy (patrząc od zewnątrz murów).
Mniej pisano o murach po zachodniej stronie bramy i dlatego w ostatnim czasie powstał problem ich identyfikacji. Okazuje się, że typowy mur - parkan (grubość 75 cm z solidnymi przyporami i wysokością ponad 3 m) umieszczono tylko na krótkim odcinku, przylegającym do byłej Bramy Oławskiej i ciągnący się do początku budynku byłego spichlerza (obecnie nowego budynku mieszkalnego) przy ul. Młynarskiej.
![]() |
![]() |
|
Mur-parkan biegnący po zachodniej stronie byłej Bramy Oławskiej (ul. 3 Maja) do widocznego budynku ZDZ. I dalej przez ten budynek i budynki garażowe |
Korona muru-parkanu z widocznymi przyporami i współczesnymi barierkami ochronnymi. |
Przyjmiemy hipotezę, że dalej, w kierunku fosy zamkowej, znajdował się nasyp (wał ziemny), analogiczny do tego, leżącego po wschodniej stronie i pokazany na poniższym rysunku. Na nim również można było stawiać armaty.

Rys. wg prof. M. Przyłęckiego
Nasyp mógł mieć szerokość ok. 8 m , dalej istniał stok o szerokości 4 - 7 m, następnie fosa o głębokości ok. 4 m i szerokości ok. 40 m. Być może, że po osuszeniu fosy (ok. 1600 r.) i rozpoczęciu rozbudowy młyna książęcego - zaszła konieczność uzyskania w miejscu fosy i nasypu - nowego miejsca na rozbudowę młyna oraz umieszczenia spichlerza, magazynów, domów dla obsługi itp. Może dlatego ewentualny stok nasypu zniwelowano i zatem zabezpieczono go przed osuwaniem murem oporowym? Przemawia za tym istnienie na długości 43 metrów aż trzech odcinków muru o innej konstrukcji i wymiarach muru (w stosunku do muru-parkanu), a szczególnie jego mniejsza grubość. Za murem oporowym przemawia także fakt załamania przebiegu muru, w miejscu wymurowania budynku dawnego młyna. W przypadku muru kurtynowego takie załamanie nie byłoby niczym uzasadnione.
«Można przyjąć hipotezę, że dalszy odcinek obecnie istniejącego muru spełniał zadania muru oporowego i był budowany odcinkami w różnych okresach czasu»
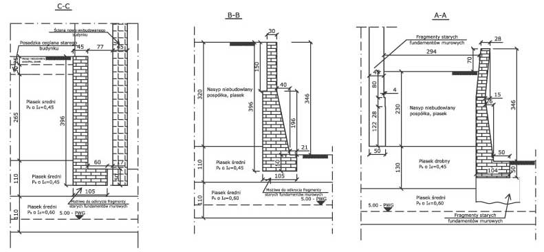
Przekrój przez mur w trzech miejscach. Widoczna różnica kształtu i wymiarów muru. Pokazany przekrój A-A zaczyna się zapewne w okolicach obecnych schodów przy byłym budynku młyna, a kończy (C-C) przy wybudowanym w 2006 r. nowym budynkiem.
Źródło: http://files.olesnica.pl/Zamowienia7/Mury/Przekroje.pdf
Sytuację tę przedstawia poniższy wycinek z mapy miasta.

Na wycinku z mapy z 1882 r. pokazano przebieg muru-parkanu po obu stronach wieży (ulicy 3 Maja). Z lewej stronu mur-parkan kończył się
przy obecnym budynku ZDZ. Wg innej dokładniejszej mapy, kończył się przy budynku spichlerza (magazynu). Dalej, aż do końca "Domu na murze", przebiega mur o innej konstrukcji.
Wyjaśnienie: pokazane na mapie kropki w miejscu muru o innej konstrukcji to tylko oznaczenie
granic terenu)
Można też przyjąć hipotezę, że był to jednak mur-parkan. Za tym przemawia być może istnienie resztek takiego muru na jego zakończeniu, przy fosie zamkowej (ale jest on przesunięty względem rozpatrywanego muru!). Za istnieniem muru-parkanu optuje znawca murów obronnych Kurt Bimler, zaznaczając go, co prawda schematycznie, na planie miasta w swojej książce. Jednak należy mieć na uwadze, że On nie miał możliwości sprawdzenia przekrojów, nie był mieszkańcem Oleśnicy i nie "drążył tego tematu".
Jak wytłumaczyć istnienie innych parametrów tego muru, w stosunku do muru-parkanu? Może mur-parkan rozebrano w tym miejscu na żądanie Szwedów w trakcie wojny trzydziestoletniej (jak wiadomo, część murów została rozebrana), może inne zdarzenia doprowadziły do jego zniknięcia? Może na jego fundamentach, lub obok nich, wybudowano nowy mur, jako tylko mur oporowy? A może były to oszczędny mur-parkan budowane przez miasto, w miarę zdobywania pieniędzy? Najpewniej ilość "gdybań" uległaby zmniejszeniu, gdyby specjalista ocenił wiek tego muru.
«Można przyjąć także inną hipotezę, że dalszy odcinek obecnie istniejącego muru spełniał zadania "oszczędnego" muru-parkanu i był budowany odcinkami w różnych okresach czasu»
Osobiście skłaniałbym się do tezy, że jest to mur oporowy. Być może, że obalenie jednej lub drugiej hipotezy będzie możliwe po odsłonięciu dalszego odcinka muru, dochodzącego do fosy zamkowej (po ewentualnym rozebraniu dawnego młyna). Sprzyjać temu mogłoby też odkrycie archiwalnych materiałów opisujących rozwiązanie techniczne fosy i jej głębokość w tym miejscu, a także głębokość koryta rzeki Oleśnicy, przebiegającej tutaj po 1600 roku.
Budowle związane z murami
Kiedy zanikło obronne znaczenie murów miejskich, zaczęto do nich przybudowywać różne budowle (oszczędności w zużyciu budulca), a na międzymurzu stawiać budynki mieszkalne, publiczne i gospodarcze. To także miało miejsce w rejonie murów przy obecnej ul. Młynarskiej. Jednak takie działania mogły mieć niekorzystne działania na mur. Zdarzało się bowiem, że właściciele domów przyległych "wydłubywali" cegły z muru, aby powiększyć pomieszczenia, a cegłę zużytkować na dalsze rozbudowy. Najdłużej znaną budowlą ceglaną związaną z murami jest tzw. Dom na murze istniejący zapewne od ok. połowy XIX w., do chwili obecnej, mający numerację ul. Sejmowa 10.
![]() |
Na fragmencie planu z 1882 r. widać, że przy ul. Młynarskiej dobudowano do muru duży budynek spichlerza, budynek młyna, oznaczony jako Gr 4. Na międzymurzu wybudowano budynek o nieznanym, przeznaczeniu. Za nim dobudowano do muru kurtynowego budynek także o nieznanym przeznaczeniu (oba zaznaczono na niebiesko). Dalej widać budynek oznaczony jako (Sejmowa) 10, który można było kiedyś (XIX w.) wybudować po zburzeniu części muru kurtynowego. Z rysunku wynika, że mur był obciążony trzema budynkami oraz murem kurtynowym. Z kolei mur był podparty z drugiej strony przylegającym do niego budynkiem spichlerza. W tym czasie mur nie był zagrożony utratą stateczności, gdyż nie widać było dodatkowych wzmocnień. |
Z powyższego wycinka mapy widać, że Dom na murze leżał na ziemi należącej do Księstwa Brunszwicko-Oleśnickiego, a nie do miasta. Widoczna linia z kropkami, przebiegająca w okolicach pokazanych budowli, stanowiła granicę podziału ziemi książęcej i miasta. Po 1901 r. dom o nr 10 już leżał na terytorium miasta i należał do właściciela młyna (spółka Bielschowsky-Weigert). Był on, jak można sądzić, budynkiem mieszkalnym obsługi młyna.
W późniejszym okresie (ok. 1920-1935 r.) ilość i usytuowanie budynków ulega zmianom, pokazanym na poniższych zdjęciach.
![]() |
![]() |
| Fragment zdjęcia znajdującego się w Instytucie Herdera w Marburgu |
Fragment widokówki, stanowiącej własność Pawła Szczegodzińskiego |
Z powyższych zdjęć wynika, że wówczas mur był związany obciążeniem z: budynkiem 10 (1); małym budynkiem gospodarczym umieszczonym na międzymurzu, przy budynku spichlerza (widocznym na lewym zdjęciu); dwupiętrowyym budynkiem przylegającym do muru kurtynowego (3); murem kurtynowym; dwupiętrowym budynkiem leżącym na międzymurzu (4). Czyli mur-parkan wówczas był mocno obciążony.
Po 1945 r. na murze istniały wybudowane w tych latach różne komórki przylegające do muru kurtynowego. W latach 70-ych zlikwidowano mur kurtynowy i wówczas także zniknęły komórki. Pozostał tylko Dom na murze. Jeszcze kilka lat temu mieliśmy sytuację pokazaną na poniższym zdjęciu sprzed 2005 r.
Na powyższym zdjęciu widać, że mur jest obciążony tylko Domem na murze oraz ziemią i resztkami murów starych budowli. Inne pobliskie budynki oraz mur kurtynowy przestały istnieć. Mur był podparty na znacznej długości przez pokazany spichlerz. Być może, że nie był to mur obronny, a mur spichlerza. Po rozebraniu zabytkowego XIX wiecznego spichlerza, ukazała się część muru niewidoczna przez prawie 100 lat.
![]() |
![]() |
| Z lewej wdoczna część muru (jaśniejsza cegła), która została remontowana prawdopodobnie w latach 70-ch |
Pozostała część muru. Dalsza część (może typowego muru-parkanu) skryta jest w garażach |
Z powiększenia zdjęcia wynika, że mur ten był bardzo zniszczony. W związku z tym, że na miejscu spichlerza miał być wybudowany nowy dom mieszkalny, prawie przylegający do muru - należało wyremontować mur, gdyż dostęp do niego nie byłby później możliwy. Jeśli z planów wynikało, że nowy budynek nie będzie fizycznie przylegał do muru - należało sprawdzić, czy mur ten będzie stateczny. Niestety, miasto odpowiedzialne za remonty muru, nie wykonało tych prac. Dlaczego??? Następnie wybudowano budynek, który uniemożliwił dostęp do muru [1], [2], [3], [4], [5]. Jestem zdania, że nowe budynki nie powinny przylegać do murów. Mur powinien być widoczny, dostępny na całej długości.
Obecnie każda chęć naprawy muru wymagać będzie użycia metod umożliwiających dotarcie do muru od strony byłego międzymurza. Będzie to związane z dużymi kosztami.
Na zdjęciu widoczna część muru z tzw. Domem na murze, który będzie rozebrany z niewiadomych powodów.
(decydenci nie wyjaśnili mieszkańcom przyczyny tego)
Niżej link do artykułu z Panoramy Oleśnickiej w sprawie obrony tego domu przed rozebraniem.
Zostawcie Sejmową 10! Apelujemy do władz Oleśnicy, aby nie burzyć zabytkowego domu
Zbieżne:
Opis muru kurtynowego, parkanu i miedzymurza
Identyfikacja kolejnego odcinka muru miejskiego
Od autora • Lokacja miasta • Oleśnica piastowska • Oleśnica Podiebradów • Oleśnica Wirtembergów
Oleśnica za Welfów • Oleśnica po 1885 r. • Zamek oleśnicki • Kościół zamkowy • Pomniki • Inne zabytki
Fortyfikacje • Herb Oleśnicy • Herby księstw • Drukarnie • Numizmaty • Książęce krypty
Kary - pręgierz i szubienica • Wojsko w Oleśnicy • Walki w 1945 roku • Renowacje zabytków
Biografie znanych osób • Zasłużeni dla Oleśnicy • Artyści oleśniccy • Autorzy • Rysowali Oleśnicę
Fotograficy • Wspomnienia osadników • Mapy • Co pod ziemią? • Landsmannschaft Oels
Wydawnictwa oleśnickie • Recenzje • Bibliografia • Linki • Zauważyli nas • Interpelacje radnych
Alte Postkarten - widokówki • Fotografie miasta • Rysunki • Odeszli • Opisy wybranych miejscowości
CIEKAWOSTKI • ZWIEDZANIE MIASTA Z LAPTOPEM, TABLETEM ....
NOWOŚCI